Objektart
Adresse
Objektdaten
Informationen
Ausstattung
Details
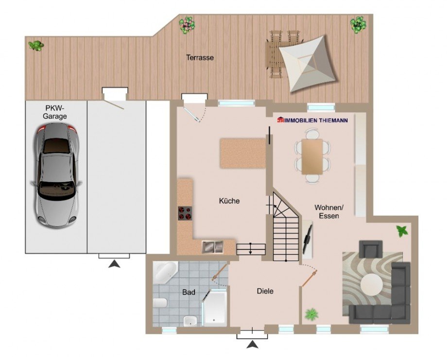
Mit diesem neuen Immobilienangebot erwartet Sie eine ursprünglich im Jahr 1916 erbaute Doppelhaushälfte auf einem nordöstlich ausgerichtetem und besonders großzügig geschnittenen Grundstück innerhalb der Welheimer Mark von Bottrop. Die Immobilie ist zuletzt in den Jahren 2011/2012 durch die derzeitigen Eigentümer umfangreich modernisiert und u.a. durch einen Anbau im Erdgeschoss auch beachtlich erweitert worden. Im rechtlichen Sinne handelt es sich um eine Eigentumswohnung (geteilt gem. §8 WEG) - nähere Informationen dazu unter "Sonstige Angaben" in diesem Exposé. Das Haus bietet Ihnen derzeit im Erdgeschoss ein ca. 34 qm großes Wohn- & Esszimmer mit einer neuwertigen Kamininstallation im Wohnbereich (Kaminofen nicht Bestandteil des Angebots!). Ein großzügiger Hauseingangsbereich verbindet auf dieser Etage weiterhin die im Anbau (BJ 2011) befindliche und ca. 21 qm große Küche (Küchenmöbel nicht Bestandteil des Angebots!) mit dem benachbarten und ebenfalls komplett erneuerten Hauptbadezimmer des Hauses. Über den Treppenaufgang erreichen Sie das Obergeschoss wo Sie zwei geräumige Kinderzimmer mit jeweils ca. 19 qm Wohnfläche erwarten. Abgerundet wird das Raumangebot dieser Etage durch ein weiteres praktisches WC inkl. Handwaschbecken. Abschließend betreten Sie über den Flur im 1. OG einen weiteren Treppenaufgang, welcher Sie hinauf in den wohnraumtauglich ausgebauten Spitzboden (Nutzfläche! Nicht in der Wohnflächen- & Zimmerangabe enthalten) führt. Hier befinden sich zwei weitere baulich voneinander getrennte Räume. Praktische Lagerflächen bietet Ihnen u.a. der ca. 37 qm (Nfl.) große Keller, oder ein zum Lagerraum ausgebauter Durchgang in den Garten neben Ihrer PKW- Garage. Ein weiteres Highlight der hochwertig angelegten Außen- & Gartenflächen ist die teilüberdachte (7,5m x 3m) Terrasse, sowie die vollständig gepflasterten PKW-Stellplatzflächen vor dem Haus!
+++ DACHFORM: Zeltdach (2011 neu gedeckt) inkl. wohnraumtauglich ausgebautem Spitzboden (Nutzfläche). +++ MAUERWERK: Massivmauerwerk. +++ DECKEN: Stahlbeton/Holzbalkendecken. Verputzt und gestrichen. +++ FASSADE /DÄMMUNG: Einheitlich verputzt und gestrichen auf allen Gebäudeseiten. +++ TREPPEN: Echtholztreppenkonstruktion mit Textilauflage und Handlauf (Buche). +++ FENSTER /-SCHUTZ: Kunststoffrahmen (weiß) mit 3-fach-Isolierverglasung (2011) inkl. Rolläden (elektrisch gesteuert im EG). Veluxdachflächenfenster im Spitzboden. +++ HEIZUNG: Gaszentralheizung (Vaillant - 1990´iger Jahre), inkl. zentraler Warmwassererzeugung. Alle Leitungssysteme des Hauses wurden im Jahr 2011 erneuert. Die Beheizung der Wohnräume erfolgt über moderne Flächenheizkörper. +++ TÜREN: Einheitliche Holztüren (tlw. als Glasausführung) mit Holzzargen (in Buche). +++ FUßBÖDEN: Großformatige Fliesen (innen- und Außenbereich), sowie moderne Textilbeläge. +++ WANDBEHANDLUNG: Größtenteils tapeziert/verputzt und gestrichen. +++ SANITÄR: Im EG befindet sich das Hauptbadezimmer inkl. Eckbadewanne, begehbarer Dusche, Handwaschbecken, Handtuchheizkörper und WC. Ein weiteres WC mit Handwaschbecken befindet sich im 1. Obergeschoss (jeweils im Jahr 2011 erneuert). +++ ELEKTRIK: Modern und ausreichend vorhanden. Erneuert im Jahr 2011. +++
SONDERAUSSTATTUNG: Freistellplatzflächen auf dem gepflasterten Grundstück vor der PKW-Garage mit benachbartem Lagerraum inkl. Zugang in den Garten // Wohnraumtauglich ausgebauter Spitzboden (Nfl.) // Teilüberdachte Terrasse mit Zugang vom Wohn- und Esszimmer sowie über die Küche // Ausreichend dimensionierte Kellerflächen // Zeit- und familiengerechte Grundrisslösung // Kaminanschluss im Wohnzimmer // u.v.m. +++
Diese außergewöhnliche Immobilie befindet sich im südöstlichenlichen Stadbezirk Welheimer Mark innerhalb Bottrops. Die Welheimer Mark setzt auf junge Familien und lebenslanges Wohnen. Der Stadtteil bietet eine bereits traditionsreiche Arbeitertradition und liegt relativ abgeschnitten zwischen dem Tetraeder (Halde Beckstraße), der Zeche Prosper II, dem Klärwerk und dem Rhein-Herne-Kanal. Die zweieinhalb Quadratkilometer der Welheimer Mark liegen im Südosten von Bottrop am nördlichen Ufer der Emscher. Mit weniger als 1.200 Bewohnern ist die Welheimer Mark der bewohnermäßig kleinste Bottroper Stadtteil. Einkaufsmöglichkeiten sind mit dem in wenigen Minuten erreichten Südringcenter ebenso schnell zu erreichen wie die Anschlüsse an die umliegenden Autobahnen und Großstädte durch die B224. Sind Sie neugierig geworden und wünschen sich weitere Informationen zum Umfeld der Immobilie? Gerne stehen wir Ihnen für Ihre Rückfragen jederzeit zur Verfügung!
GRUNDBESITZABGABEN: Laut Bescheid der Stadt Bottrop für das Jahr 2019 beläuft sich die Höhe der Grundsteuer auf jährlich: 1.010,05 EUR (monatlich: 84,17 EUR)
HEIZKOSTEN: Derzeit belaufen sich Heizkosten (Gas) der Immobilie auf monatlich 95 EUR.
ANMERKUNG: Bei dieser Immobilie handelt es sich im rechtlichen Sinne um eine Eigentumswohnung. Im Jahr 1989 wurde von den damaligen Eigentümern eine Teilungserklärung (gem. § 8 WEG) erstellt. Beide Wohneinheiten sind wirtschaftlich jedoch gänzlich voneinander separiert, die Immobilien sowie das Grundstück sind weiterhin auch baulich voneinander getrennt.
ZUR INFORMATION: Optional sind bei Interesse auch gewisse Einrichtungsgegenstände zu erwerben. Hier sind vorrangig die neuwertige Küche und der Kaminofen interessant. Gerne ermöglichen wir Ihnen weiterhin auf Ihre Anfrage eine kostenfreie virtuelle Besichtigung dieser Immobilie. Wir freuen uns schon jetzt auf Ihre Kontaktaufnahme!
+++ Energieeffizienz: B, 240,3 kWh/(m²*a), Gas, BJ 1916, G. +++
Ansprechpartner
Telefax: 0049204194371
info@immobilien-thiemann.de
Energieausweis (Bedarfsausweis)
240,30 kWh / (m²*a) Endenergiebedarf
240,30 kWh / (m²*a) Endenergiebedarf
240,30 kWh / (m²*a) Endenergiebedarf
Weitere Informationen
| Wesentlicher Energieträger | GAS |
| Energieausweis gültig bis | 2029-12-11 |
| Energieausweis Jahrgang | ab dem 1.5.2014 |
| Energieausweis Werteklasse | G |
| Energieausweis Baujahr | 1916 |
| Energieausweis Gebäudeart | Wohngebäude |
| Heizung | Zentralheizung |
| Befeuerung | Gas |
Objektanfrage | Beachten Sie ggf. Ihren SPAM-ORDNER! |
Bitte beachten Sie, dass unsere Antwort ggf. auch in Ihrem SPAM-ORDNER landen kann!!
Wir beantworten alle Objektanfragen spätestens innerhalb eines Werktages!
Sie haben noch Fragen zu dem Angebot oder wollen einen Besichtigungstermin vereinbaren, dann füllen Sie einfach das untenstehende Formular vollständig aus und wir setzen uns schnellstmöglich mit Ihnen in Verbindung.
