Das Kreuz in Ihrer Schatzkarte
Die Doppelhaus-Neubausiedlung Rhenania in KfW 55 Bauweise
Oktober 2020: Alle Immobilien in der Neubauwohnsiedlung Rhenania sind verkauft!
Die Wohnsiedlung Rhenania
Hier entsteht auf traditionellem Boden, in unmittelbarer Nähe zum Batenbrockpark eine ansprechende und vor allem hochwertig erbaute Neubausiedlung auf der ehemaligen Platzanlage des im Jahr 1919 gegründeten SV Rhenania 1919 Bottrop e.V.. Trotz seiner Grünflächen, dem Batenbrockpark und der Tetraeder Halde, ist er nach der Innenstadt der am dichtesten besiedelte Stadtteil Bottrops. Über 20 000 Einwohner, leben zwischen der Tannenstraße im Norden und dem Gewerbegebiet Knippenburg im Süden. Im Westen grenzt Batenbrock in Höhe des Ostrings an die Bottroper Mitte und an der Bahnhofstraße an die Lehmkuhle. Im Osten begrenzt eine Zechenbahn entlang des Ostfriedhofs (der sich damit auf Boyer Gebiet befindet) und der Tetraeder Halde den Stadtteil.
Impressionen vom Baufortschritt (bis 08.2020)
Hervorragende Lage
Wenn Ihnen die Vorzüge einer ruhigen und gewachsenen Nachbarschaft ebenso wichtig sind, wie eine optimale Anbindung an die sich in und um Bottrop kräftig entwickelnde Infrastruktur, dann wird Sie dieses Neubauprojekt interessieren.
Exklusive Architektur
Das Projekt wurde von ausgezeichneten Architekten entworfen und bietet zeitlose Lebensräume. Im Mittelpunkt der architektonischen Überlegungen steht der Mensch mit seinen individuellen und modernen Wohnraumbedürfnissen.
Individuelle Ausstattung
Auf die Wünsche und Bedürfnisse der Käufer kann intensiv eingegangen werden. Alle Immobilien sind bereits in der vorgesehenen Bauweise lichtdurchflutet, großzügig und modern geschnitten sowie exklusiv ausgestattet.
Eine Umgebung mit Kultur und Zukunft
Die Lage Bottrops im südwestlichen Rand des Ruhrgebietes macht uns zu etwas ganz Besonderem. Bottrop und Großteile seiner direkten Nachbarstädte machen diese Umgebung zu den grünsten Städten, und das sogar in ganz Deutschland. Tatsächlich!
Grün ist es hier, und das nicht nur in der Innenstadt mit Ihrem weitläufigen Stadtpark, sondern auch und besonders in dem sich daran anschließenden Stadtwald. Aus den an den Stadtwald angrenzenden Stadtteilen Fuhlenbrock, Eigen oder der Stadtmitte, können Sie mit dem Fahrrad ohne Wald und Wiesen verlassen zu müssen bis weit in den Hünxerwald und ewig darüber hinaus radeln. Soviel also zu dem sich hartnäckig haltenden Gerücht von rußgeschwängerter Luft und dreckiger Wäsche. Wenige Städte sind rund um das Rathaus so lebendig wie die unserige. Wöchentlich steigende Besucherzahlen unserer Gastromeile auf der Gladbecker Straße, oder unseres Feierabendmarktes auf dem Rathausplatz sind erfreuliche Belege hierfür. Und auch unsere Stadtansichten sind nicht etwa trostlos! Bottrop ist bunt, modern, idyllisch, urban und ländlich zugleich. Und das ist auch gut so, denn all´das ist Bottrop. Unsere und vielleicht ja auch bald Ihre Heimat.
Grün ist es hier, und das nicht nur in der Innenstadt mit Ihrem weitläufigen Stadtpark, sondern auch und besonders in dem sich daran anschließenden Stadtwald. Aus den an den Stadtwald angrenzenden Stadtteilen Fuhlenbrock, Eigen oder der Stadtmitte, können Sie mit dem Fahrrad ohne Wald und Wiesen verlassen zu müssen bis weit in den Hünxerwald und ewig darüber hinaus radeln. Soviel also zu dem sich hartnäckig haltenden Gerücht von rußgeschwängerter Luft und dreckiger Wäsche. Wenige Städte sind rund um das Rathaus so lebendig wie die unserige. Wöchentlich steigende Besucherzahlen unserer Gastromeile auf der Gladbecker Straße, oder unseres Feierabendmarktes auf dem Rathausplatz sind erfreuliche Belege hierfür. Und auch unsere Stadtansichten sind nicht etwa trostlos! Bottrop ist bunt, modern, idyllisch, urban und ländlich zugleich. Und das ist auch gut so, denn all´das ist Bottrop. Unsere und vielleicht ja auch bald Ihre Heimat.
IHR NEUES ZUHAUSE
In diesem Neubaugebiet in Bottrop-Batenbrock fügen sich Moderne, Komfort und eine hohe energetische Effektivität zu einem traumhaften Zuhause für Paare und junge Familien zusammen. Es sind hier insgesamt 24 Doppelhaushälften in der zukünftigen Reckmannallee entstanden.
Die Impressionen und weiteren Raumeinblicke auf dieser Projektseite beziehen sich auf eine
beispielhafte Doppelhaushälfte innerhalb der Wohnsiedlung.
Ein Lageplan, Zeichnungen & Berechnungen der einzelnen Immobilien finden Sie untenstehend. Die reine Wohnfläche der Häuser
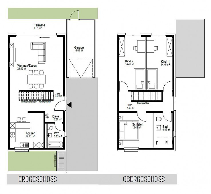
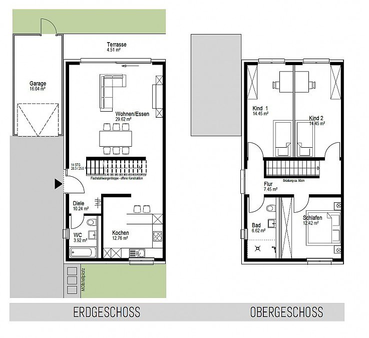
116,49 m² (zzgl. 55,90 m² Nfl.) bietet mit insgesamt vier Zimmern, verteilt auf zwei Ebenen zzgl. Keller, ausreichend Platz für eine individuelle Gestaltung Ihres Familienlebens.
So wird gebaut
Sowohl die Bauweise als auch die Technik der neuen Einfamilienhäuser werden modernen und zeitgemäßen Anforderungen gerecht. Um Energie einzusparen wird u.a. die hell verputzte Außenfassade mit einem Wärmedämmverbundsystem versehen und isolierverglaste Wärmeschutzfenster (inkl. 3- fach- Verglasung) eingesetzt.
Sowohl die Bauweise als auch die Technik der neuen Einfamilienhäuser werden modernen und zeitgemäßen Anforderungen gerecht. Beispielsweise werden die Anforderungen für KfW- Effizienzhäuser 55 erfüllt. Die Grundstücksgrößen der aktuell noch zum Verkauf stehenden Immobilien belaufen sich auf ca. 246 m² und ca. 247 m² und sind somit im Neubaumarkt durchaus großzügig.
Sowohl die Bauweise als auch die Technik der neuen Einfamilienhäuser werden modernen und zeitgemäßen Anforderungen gerecht. Beispielsweise werden die Anforderungen für KfW- Effizienzhäuser 55 erfüllt. Die Grundstücksgrößen der aktuell noch zum Verkauf stehenden Immobilien belaufen sich auf ca. 246 m² und ca. 247 m² und sind somit im Neubaumarkt durchaus großzügig.
Zu jedem Haus gehört bereits eine PKW Garage mit basaltgrauem Stahlschwingtor, sowie einer Tür (weiß) als Austritt in den Garten. Die gepflasterte Einfahrt bietet zusätzliche PKW Stellplatzflächen, ebenfalls auf Ihrem Grundstück.
Die Ausstattung gem. Bau-& Leistungsbeschreibung
Bei der Ausstattung wird in allen Bereichen auf hohe Produktqualität geachtet. Es handelt sich bei der folgenden Ausführung um Auszüge einer grundsätzlichen Bau- & Leistungsbeschreibung. Sonderwünsche des Erwerbers sind unter Auflagenberücksichtigung möglich. Gerne beraten wir Sie bei weiteren Fragen und Ihren individuellen Möglichkeiten! Die Bau- und Leistungsbeschreibung finden Sie im untenstehenden Downloadbereich.
//DACHFORM: Flachdachflächen mit bituminösen Dachbahnen. Entwässerung erfolgt über Dachabläufe sowie außen liegende Fallrohre. //MAUERWERK: Überwiegend Kalksandsteinmassivmauerwerk gem. Statik. //DECKEN: Stahlbetondecken entsprechend der statischen Vorgaben. //FASSADE & DÄMMUNG: Die Außenwandbekleidung wird überwiegend als Wärmeverbundsystem mit mineralischem Putz ausgeführt. //FENSTER /-SCHUTZ: Tlw. bodentiefe Kunststoffdreh- und Kippfenster mit Isolierverglasung (3- fach- Verglasung mit U- Wert) und überall inkl. Kunststoffrollläden inkl. elektrischem Antrieb; Tlw. inkl. Hebe-Schiebetürelement im Wohnzimmer (Baufortschrittsabhängig). //HEIZUNG: Die zentrale Beheizung & die Warmwasserversorgung der Häuser erfolgt über den Anschluss an das Fernwärmenetz der Steag. Die Raumheizung erfolgt über eine komfortable Fußbodenheizung. //TÜREN: Hauseingangstür: Ausführung inkl. eines U- Wertes gem. Wärmeschutznachweis. Die Gestaltung erfolgt nach Vorgabe des Architekten. Hausinnentüren: Mit Röhrenspanplatteneinlage (weiß foliert) inkl. Holzumfassungzarge und Drückern aus Edelstahl. //FUßBÖDEN: Die Böden (& tlw. Wandflächen) der Badezimmer- sowie Gäste WCs werden mit Fliesen als Feinsteinzeug belegt. Rechtzeitige Materialwahlabsprachen sind möglich. Die vom Bauträger als Richtwert ausgewählte Fliese entspricht einem Materialpreis i.H.v.
//DACHFORM: Flachdachflächen mit bituminösen Dachbahnen. Entwässerung erfolgt über Dachabläufe sowie außen liegende Fallrohre. //MAUERWERK: Überwiegend Kalksandsteinmassivmauerwerk gem. Statik. //DECKEN: Stahlbetondecken entsprechend der statischen Vorgaben. //FASSADE & DÄMMUNG: Die Außenwandbekleidung wird überwiegend als Wärmeverbundsystem mit mineralischem Putz ausgeführt. //FENSTER /-SCHUTZ: Tlw. bodentiefe Kunststoffdreh- und Kippfenster mit Isolierverglasung (3- fach- Verglasung mit U- Wert) und überall inkl. Kunststoffrollläden inkl. elektrischem Antrieb; Tlw. inkl. Hebe-Schiebetürelement im Wohnzimmer (Baufortschrittsabhängig). //HEIZUNG: Die zentrale Beheizung & die Warmwasserversorgung der Häuser erfolgt über den Anschluss an das Fernwärmenetz der Steag. Die Raumheizung erfolgt über eine komfortable Fußbodenheizung. //TÜREN: Hauseingangstür: Ausführung inkl. eines U- Wertes gem. Wärmeschutznachweis. Die Gestaltung erfolgt nach Vorgabe des Architekten. Hausinnentüren: Mit Röhrenspanplatteneinlage (weiß foliert) inkl. Holzumfassungzarge und Drückern aus Edelstahl. //FUßBÖDEN: Die Böden (& tlw. Wandflächen) der Badezimmer- sowie Gäste WCs werden mit Fliesen als Feinsteinzeug belegt. Rechtzeitige Materialwahlabsprachen sind möglich. Die vom Bauträger als Richtwert ausgewählte Fliese entspricht einem Materialpreis i.H.v.
25 €/ qm (Händlerverkaufspreis). Die übrigen Bodenbeläge der Wohnräume sind in derzeitiger Kalkulation nicht im Kaufpreis enthalten. //ELEKTRIK: Die Elektroinstallationen werden gem. den Richtlinien der VDE sowie den Vorschriften der örtlichen Versorger durchgeführt. (Inklusive Installation von Rauchwarnmeldern gem. DIN 14676.) //WANDBEHANDLUNG: Maler- & Tapezierarbeiten (Innenausbau) sind nicht enthalten. Die Wände im EG und OG (sowie im Flur des KG) werden tapezierfähig verputzt. //SANITÄR: Hochwertige/ moderne Badezimmer mit Wannen- bzw. Duscheinrichtungen zzgl. separatem Gäste WC ebenfalls inkl. Badewanne/ Dusche. Bitte beachten Sie hierzu die ausführliche Bau- & Leistungsbeschreibung für zahlreiche Details. //TREPPE: Die Geschosstreppe wird als moderne Kombination aus einer Stahlgeländerkonstruktion (unlackiert) mit Holzstufenauflagen errichtet.
//EIGENLEISTUNGEN: Eigenleistungen können nur nach Übergabe an den Erwerber durchgeführt werden, vorausgesetzt ist, dass die Zahlung des gesamten Kaufpreises erfolgt ist!
//SONDERWÜNSCHE: Der vom Bauträger angebotene Leistungsumfang ist komplett zu erwerben. Sonderwünsche des Erwerbers sind möglich, soweit diese nach dem Inhalt der Baugenehmigung möglich sind und keine Eingriffe in das bautechnische und statische Konzept erforderlich machen und die Durchführbarkeit im Rahmen der vorgegebenen Termine gewährleistet ist. Die Kosten trägt der Erwerber.
// HINWEIS ZUR KAUFPREISZUSAMMENSETZUNG: Der Bauträger errichtet aktuell sowohl die bereits verkauften, als auch noch nicht verkaufte Doppelhaushälften. Durch vereinzelte Sonderausstattungen ergeben sich teilweise individualisierte Kaufpreiszusammensetzungen!
//ENERGIEEFFIZIENZ: B, 30,21 kWh, FW, Bj. 2019, A.
//EIGENLEISTUNGEN: Eigenleistungen können nur nach Übergabe an den Erwerber durchgeführt werden, vorausgesetzt ist, dass die Zahlung des gesamten Kaufpreises erfolgt ist!
//SONDERWÜNSCHE: Der vom Bauträger angebotene Leistungsumfang ist komplett zu erwerben. Sonderwünsche des Erwerbers sind möglich, soweit diese nach dem Inhalt der Baugenehmigung möglich sind und keine Eingriffe in das bautechnische und statische Konzept erforderlich machen und die Durchführbarkeit im Rahmen der vorgegebenen Termine gewährleistet ist. Die Kosten trägt der Erwerber.
// HINWEIS ZUR KAUFPREISZUSAMMENSETZUNG: Der Bauträger errichtet aktuell sowohl die bereits verkauften, als auch noch nicht verkaufte Doppelhaushälften. Durch vereinzelte Sonderausstattungen ergeben sich teilweise individualisierte Kaufpreiszusammensetzungen!
//ENERGIEEFFIZIENZ: B, 30,21 kWh, FW, Bj. 2019, A.
Die Bauweise der Gebäude unterschreitet die Energie- Einspar- Verordnung (EnEV) um 45 % (gültig seit 01. Januar 2016) und erfüllt
somit die Anforderungen eines KfW- Effizienzhauses 55.
Bitte beachten Sie, dass insofern Sie KfW-Bank Förderungen in Anspruch nehmen möchten, Ihnen Sachverständigenkosten entstehen. Bitte sprechen Sie Ihre Hausbank diesbezüglich an. Weiterhin vermittelt das Bauträger-/ bzw. Architekturbüro Ihnen gerne entsprechende Sachverständigenkontakte.
Die Hausgrundrisse: DHH mit Hauseingang LINKS
Grundriss im Erd- und Obergeschoss
Klicken Sie auf die Grafik für eine
vergrößerte Darstellung
vergrößerte Darstellung
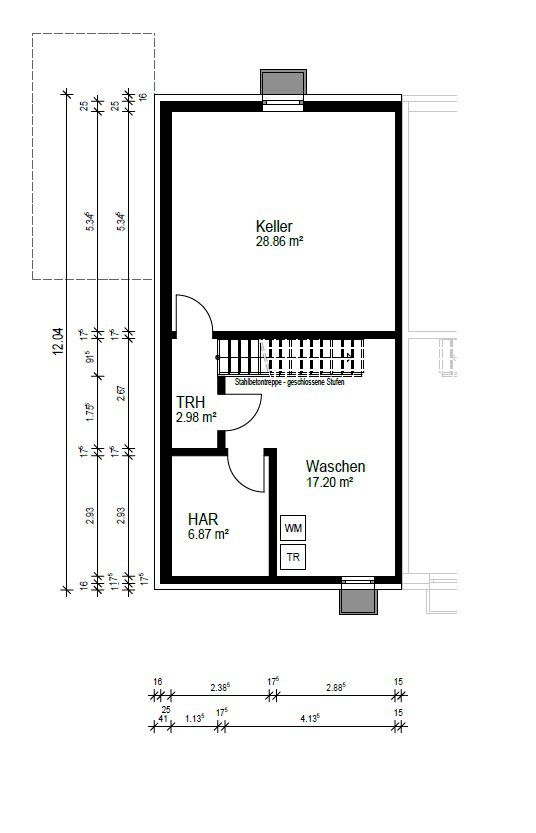
Der Kellergrundriss
Klicken Sie auf die Grafik für eine
vergrößerte Darstellung
vergrößerte Darstellung
Die Hausgrundrisse: DHH mit Hauseingang RECHTS
Grundriss im Erd- und Obergeschoss
Klicken Sie auf die Grafik für eine
vergrößerte Darstellung
vergrößerte Darstellung
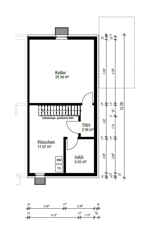
Der Kellergrundriss
Klicken Sie auf die Grafik für eine
vergrößerte Darstellung
vergrößerte Darstellung
Die Gesamtübersicht der Wohnbausiedlung
Der Lageplan der Doppelhaushälften (inkl. Hausnummern) auf der Reckmannallee
Klicken Sie auf die Grafik für eine vergrößerte Darstellung
Hinweis zur Kaufpreiszusammensetzung
Der Bauträger errichtet aktuell sowohl die bereits verkauften, als auch
noch nicht verkaufte Doppelhaushälften. Durch vereinzelte
Sonderausstattungen ergeben sich individualisierte
Kaufpreiszusammensetzungen!
Gerne erläutern wir Ihnen im persönlichen Gespräch, über welche
Sonderausstattungen die für Sie interessante
Immobilie bereits verfügt.
Alle Immobilien in der Neubauwohnsiedlung sind verkauft bzw. reserviert!
| Hausnummer | Grundstück | Zimmer | Kaufpreis Haus | Kellerausbau | Status |
|---|---|---|---|---|---|
| Nr. 2 | 4,5 | JA | verkauft | ||
| Nr. 2a | 4,5 | JA | verkauft | ||
| Nr. 3 | 4,5 | JA | verkauft | ||
| Nr. 3a | 4,5 | JA | verkauft | ||
| Nr. 4 | 4,5 | JA | verkauft | ||
| Nr. 4a | 4,5 | JA | verkauft | ||
| Nr. 5 | 4,5 | NEIN | verkauft | ||
| Nr. 5a | 4,5 | NEIN | verkauft | ||
| Nr. 6 | 4,5 | JA | verkauft | ||
| Nr. 6a | 4,5 | JA | verkauft | ||
| Nr. 7 | 4,5 | JA | verkauft | ||
| Nr. 7a | 4,5 | JA | verkauft | ||
| Nr. 8 | 4,5 | JA | verkauft | ||
| Nr. 8a | 4,5 | JA | verkauft | ||
| Nr. 9 | 4,5 | JA | verkauft | ||
| Nr. 9a | 4,5 | JA | verkauft | ||
| Nr. 10 | 4,5 | JA | verkauft | ||
| Nr. 10a | 4,5 | JA | verkauft | ||
| Nr. 12 | 4,5 | JA | verkauft | ||
| Nr. 12a | 4,5 | JA | verkauft | ||
| Nr. 14 | 4,5 | NEIN | verkauft | ||
| Nr. 14a | 4,5 | NEIN | verkauft | ||
| Nr. 16 | 4,5 | JA | verkauft | ||
| Nr. 16a | 4,5 | JA | verkauft |
Einige Referenzen der Störmann Bauträger GmbH
Bottroper Straße 91 in 45964 Gladbeck (Planung)
Bottroper Straße 91 in 45964 Gladbeck (Fertigstellung)
Wittringer Straße 2 in 45964 Gladbeck (Planung)
Wittringer Straße 2 in 45964 Gladbeck (Fertigstellung)
Bogenstraße 56 in 46236 Bottrop
Bottroper Straße 8 in 46244 Bottrop- Kirchhellen
Bottroper Straße 8 in 46244 Bottrop- Kirchhellen
Am Tüsselbeck in 46147 Oberhausen- Sterkrade
